Ein Zuhause für Deutsche Filmgeschichte

Gestaltung von Empfangstheke und Kinosaal

Batisweiler-01_1024x683Empfangstheke Foyer.

Die Friedrich-Wilhelm-Murnau-Stiftung bewahrt und verwaltet alte deutsche Filmgeschichte vor und während der Kriegsjahre in Deutschland. Dazu gehören Filme wie „Das Cabinet des Dr. Caligari“, „Metropolis“, „Der blaue Engel“, „Die 3 von der Tankstelle“ usw. Die Stiftung erhielt nun endlich ein eigenes Haus, zusammen mit anderen wichtigen Institutionen des deutschen Films.

Der Empfang
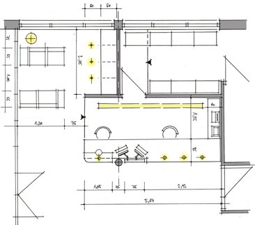
Viele Filmschaffende und Gäste besuchen das Haus. So soll das Entrée bereits vermitteln, um was es hier geht: aus Motiven solch filmischer Schätze wurde eine Collage hinter dem Empfang gestaltet.

Batisweiler-Theke-AnsichtEntwurfszeichnung Empfangsbereich Foyer.

In Materialität und Farbigkeit der Thekenmöbel werden die Gebäudefarben und Oberflächen der Fassade wieder aufgegriffen. Die Seite mit der einzelnen Hängeleuchte ist abends die Kinokasse, da wird die Empfangsbeleuchtung einfach weggeschaltet.

Batisweiler-Theke-GRGrundriss Empfangsbereich Foyer.

Der Kinosaal
Eine besondere Herausforderung war der eiförmige Grundriss des Kinosaales, da eine solche Form akustisch problematisch ist. Mit der Umsetzung einer ausgetüftelten Planung, wurden die unterschiedlichen akustischen Aufbauten in eine dem Haus angemessene Raumgestaltung umgesetzt. Da das Kinopublikum hier ein recht anspruchsvolles ist und zudem jährlich diverse Preisverleihungen stattfinden, wurde auf Details viel Wert gelegt. So wurde z.B. passend zum Bühnenvorhang ein Teppichboden entworfen, der farblich exakt dazu abgestimmt ist.

Batisweiler-06Kinosaal mit Blick Richtung Bildwand.

Das Farbkonzept des Kinosaals, Dunkelblau und Gold, entspricht den Farben des Wiesbadener Stadtwappens. Die seitlichen, dimmbaren Lichtstreifen werden betont und geschützt, durch goldfarbige Lisetten aus gewelltem Aluminium – Reminiszenz an ein klassisches Gestaltungselement großer Filmpaläste.

Batisweiler-Kino-Leinwand-aufgehelltEntwurfszeichnung Kinosaal.

Beitrag in Handbuch Innenarchitektur –  2010/11
Autorin: Anne Batisweiler
Verlag: Callwey Verlag
www.callwey.de
ISBN: 978-3-7667-1833-4